Planritningar
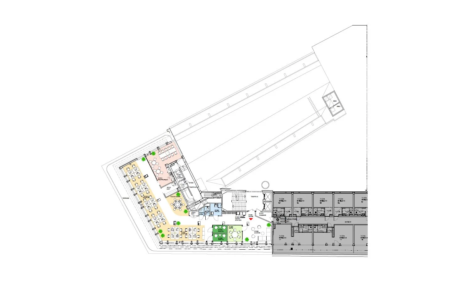
Här har vi samlat det kanske allra viktigaste: planritningarna. Nedan kan du se hur ritningarna ser ut för de ytor som finns tillgängliga i huset. I de topprenoverade lokalerna kan ni designa ert kontor utifrån ert sätt att jobba – dessutom får ni vara med och påverka materialval och färger. Allt för att er arbetsplats ska bli som ni vill ha den.
Ytorna går att kombinera på olika sätt, från ca 780 kvm upp till ca 2 350 kvm.
Ladda ner planritningarna här:
Plan 7 – 253 kvm (Uthyrd)
Plan 6 – 373 kvm (Uthyrd)
Plan 5 – 703 kvm (Uthyrd)
Plan 4 – 803 kvm (Uthyrd)
Plan 3 – 788 kvm
Plan 2 – 780 kvm
Plan 1 – 779 kvm
Plan BV (alt 1) – 302 kvm (Uthyrd)
Plan BV (alt 2) – 302 kvm (Uthyrd)
Plan -1 – 290 kvm (Uthyrd)
Plan -2
Materialpalett
Konferens & 
mötesrum 
Materialpalett
 
                         
                  
                    
                 
                  
                    
                 
                  
                    
                 
                  
                    
                 
                  
                    
                 
                  
                    
                 
                  
                    
                 
                  
                    
                 
                  
                    
                 
                  
                    
                 
                  
                    
                 
            
              
            
            
          
              